賃料 |
18.7万円 |
共益費/管理費 |
5,500円 |
|---|---|---|---|
敷金 |
2ヶ月 |
礼金 |
2ヶ月 |
保証金 |
- |
敷引_償却 |
- |
築年月 |
1989/05(築36年) |
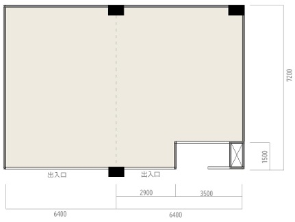
面積 |
86.9m²(26.28坪) |
階迄 |
B1階~B1階迄/5階建 |
||
所在地 |
箕面市稲1丁目 |
||
交通 |
阪急電鉄箕面線牧落駅まで 徒歩15分 |
お電話でのお問い合わせ
物件番号:8688
お電話でお問い合わせの際は、物件番号をお伝えください。
072-721-3300
営業時間: 10:00 - 19:00
定休日:水曜日・第1、3木曜日
ポイント
POINT
半地下1階店舗/現状引き渡し/
物件詳細DETAIL
建物構造 |
鉄筋コンクリート造(RC) |
坪賃料 |
7,113円 |
|---|---|---|---|
現況 |
空き予定 |
引渡時期 |
2025/12 上旬 |
保険等 |
要 2年 |
保証会社 |
必須 *初回保証料、総家賃100%、継続保証料総家賃20%/年 |
契約期間 |
更新料 |
||
取引態様 |
仲介 |
仲介手数料 |
50% |
諸費用 |
賃貸保証加入費用 -
カギ交換費用 19,800円
家賃口座引落手数料/月 -
別途費用有り要確認 - |
駐車場 |
1台含む |
周辺環境 |
|||
特色/設備 |
大通り面 |
||
情報更新日 |
2025年11月04日 |
次回更新予定日 |
2025年11月05日 |
※掲載されている物件データが現状と異なる場合は現状を優先します。
周辺地図MAP
有限会社メイプルCOMPANY
所在地 |
大阪府箕面市箕面6丁目1番20号 箕面本通り商店街 |
||
|---|---|---|---|
免許番号 |
大阪府知事免許(5)第50265号 |
||
会員 |
(公社)全日本不動産協会
(公社)不動産保証協会
(公社)近畿地区不動産公正取引協議会
|
||
電話番号 |
072-721-3300 |
FAX番号 |
072-721-3399 |
営業時間 |
10:00 - 19:00 |
定休日 |
水曜日・第1、3木曜日 |

